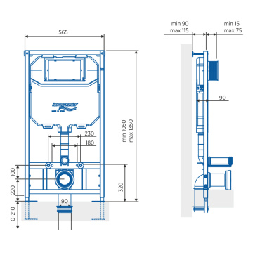
IDROSPANIA